Дом рядом с парком

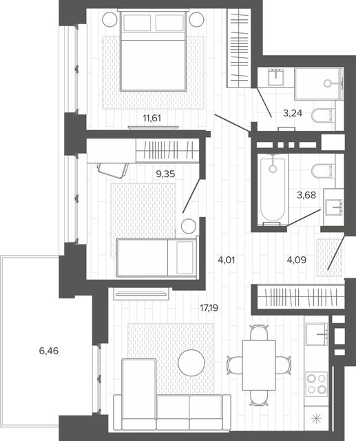
Квартира № 72, 3 этаж

Дом, Секция 2

Строится
Барнаул, ул. Сизова, 20

 
91,53 м2
15 425 060 ₽

Семейная ипотека от 5,5%
Базовая ипотека от 10,5%
Военная ипотека от 6%
IT-ипотека от 5,5%

Первоначальный взнос 20%, остальное до конца строительства.

Выбрать другую квартиру