Коммерческие помещения

Вернуться к результатам

Дом рядом с парком

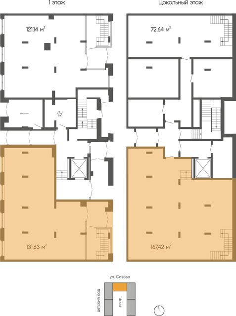
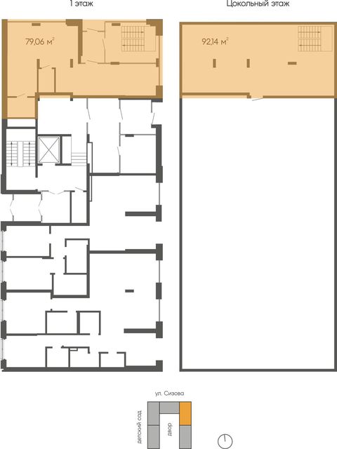
Офис 1, 1 этаж

Строится
Барнаул, ул. Сизова, 20

 
171,3 м2
34 260 000 ₽

Первоначальный взнос 20%, остальное до конца строительства.

Выбрать другой офис