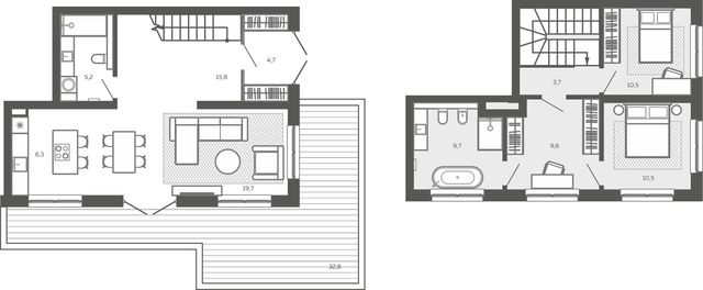
Квартира № 124, 4 этаж
Корпус 1, Секция 3
Строится Барнаул, Змеиногорский тракт, 35б
Семейная ипотека от 3,5%Базовая ипотека от 10,5%Военная ипотека от 6%IT-ипотека от 5,5%
Первоначальный взнос 50%, остальная сумма равными долями до мая 2026 года.
Наш менеджер свяжется с вами ближайшее время.
Вышка, 67.17 м2
Успешно забронировано!
На нашем сайте мы используем файлы cookies