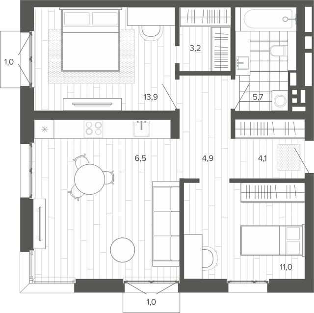
Квартира № 29, 6 этаж
Корпус 3, Секция 1
Строится Барнаул, Змеиногорский тракт, 35б
Семейная ипотека от 5,5%Семейная военная ипотека от 6%IT-ипотека от 5,5%
Первоначальный взнос 50%, остальная сумма равными долями до мая 2026 года.
Наш менеджер свяжется с вами ближайшее время.
Вышка, 59.18 м2
Успешно забронировано!
На нашем сайте мы используем файлы cookies