Зелёный квартал на горе

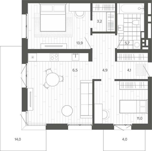
Квартира № 48, 8 этаж

Корпус 1, Секция 1

Строится
Барнаул, Змеиногорский тракт, 35б

69,46 м2
13 305 000 ₽

Семейная ипотека от 3,5%
Базовая ипотека от 10,5%
Военная ипотека от 6%
IT-ипотека от 5,5%

Первоначальный взнос 50%, остальная сумма равными долями до мая 2026 года.

Детали квартиры

Жизнь идёт в правильном направлении - вот что вы почувствуете находясь в квартире. Окна, выходящие в нескольких направлениях наполнят квартиру максимальным количеством света в течение дня, от сезона к сезону. В полной мере насладиться летними закатами и зимним солнцем позволяют продольные балконы.

Высота потолка 2.7 м2

Выбрать другую квартиру