Зелёный квартал на горе

Квартира № 9, 3 этаж

Корпус 1, Секция 1

Строится
Барнаул, Змеиногорский тракт, 35б

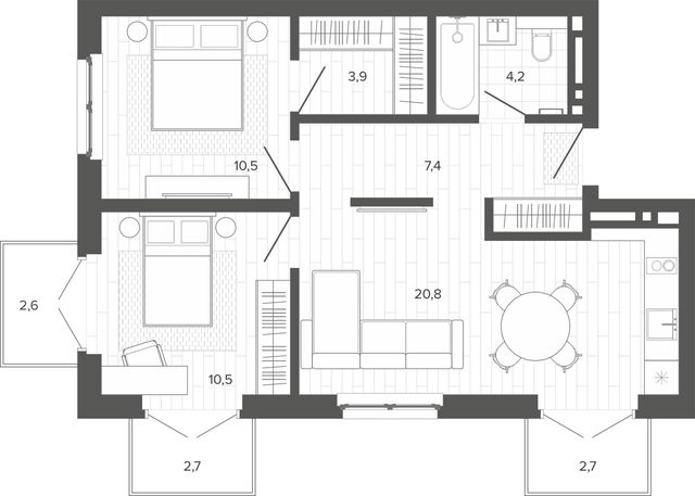
69,1 м2
12 395 000 ₽

Семейная ипотека от 3,5%
Базовая ипотека от 10,5%
Военная ипотека от 6%
IT-ипотека от 5,5%

Первоначальный взнос 50%, остальная сумма равными долями до мая 2026 года.

Детали квартиры

Планировка квартиры способствует созданию разных сценариев жизни. Гостиная плавно перетекает в уютное место, для которого вы выбираете подходящую функцию - чтение книг, уединение с собой, работа в личном кабинете.

Высота потолка 2,7 м2

Выбрать другую квартиру